Bezugsfrei – 4. OG – 62,15 m² – 3 Zimmer – Westloggia – Bestlage, in 3 Min zum Lietzensee – Keller

Alles Wichtige auf einen Blick

Objektart
Wohnung
Standort
14057
Kaufpreis
372.800 €
Wohnfläche
62,15 m²
Zimmer
3
Zustand
gepflegt
Verfügbar ab
sofort
Baujahr
1955

Alles Wichtige auf einen Blick

Objektart
Wohnung
Standort
Berlin
Kaufpreis
372.800 €
Wohnfläche
62,15 m²
Zimmer
3
Zustand
gepflegt
Verfügbar ab
sofort
Baujahr
1955

Beschreibung

Die zum Verkauf stehende bezugsfreie 3-Zimmer-Wohnung befindet sich im fünften Obergeschoss - der letzten Etage - einer gepflegten Wohnanlage in Berlin-Charlottenburg. Das Treppenhaus präsentiert sich hell und freundlich. Das Gebäude verfügt insgesamt über fünf Ebenen inklusive Erdgeschoss; die Wohnung befindet sich in der obersten Etage, dem vierten Obergeschoss. Die Treppe ist angenehm zu begehen und durch die Podeststruktur sehr leichtgängig, sodass der Aufgang deutlich komfortabler wirkt und nicht den Eindruck vermittelt, ein besonders hohes Stockwerk zu erreichen. Ein Aufzug ist nicht vorhanden.
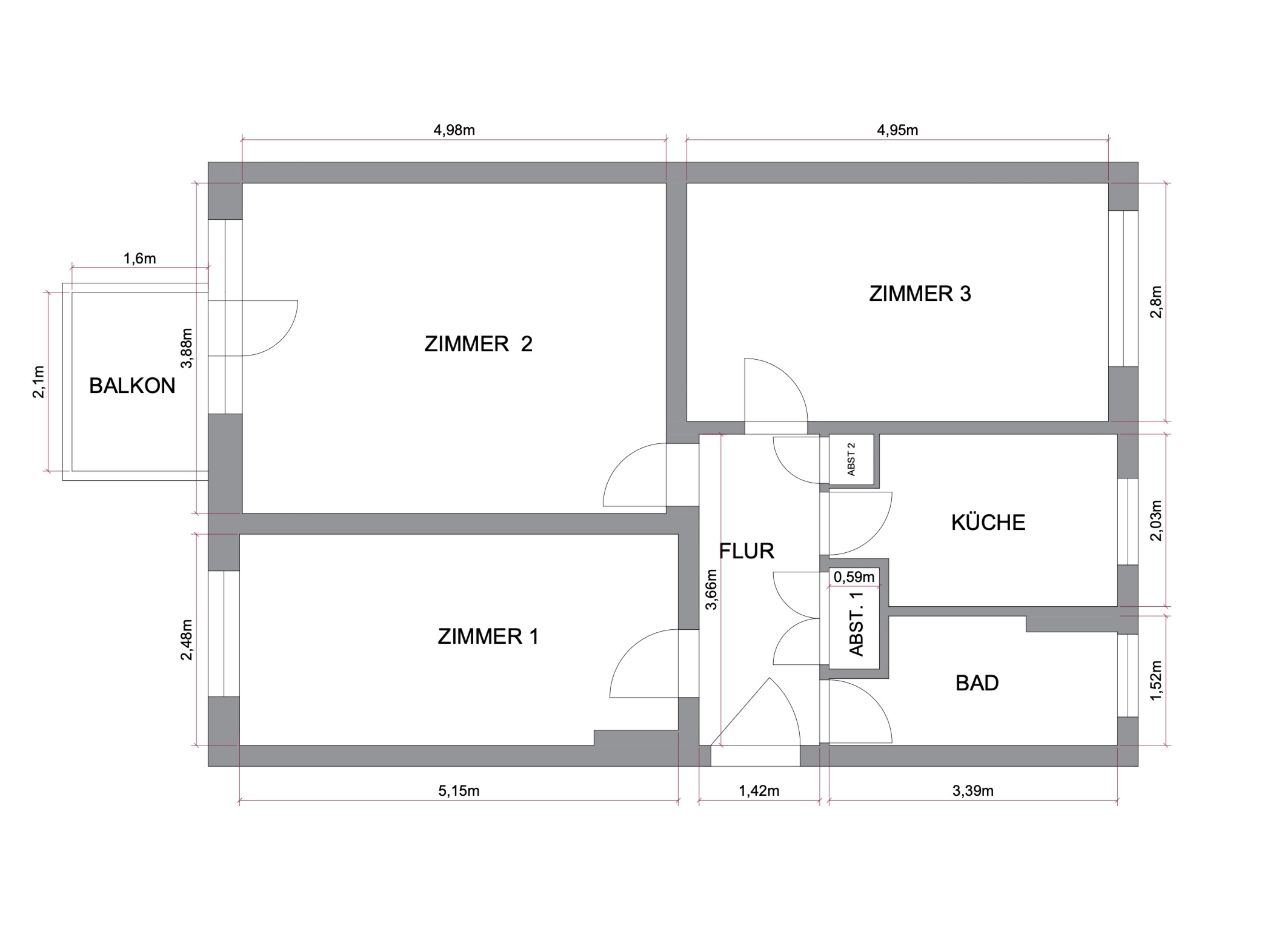
Auf ca. 62,15 m² Wohnfläche verteilen sich drei gut geschnittene Zimmer mit funktionaler, klarer Raumaufteilung. Das Wohnzimmer mit direktem Zugang zur Westloggia mit ca. 3,36 m² bietet einen weiten Blick über die umliegende Bebauung bis hin zum West-Berliner Fernsehturm. Die Lage im obersten Geschoss sorgt für angenehme Privatsphäre und sehr gute Lichtverhältnisse. Die beiden weiteren Zimmer lassen sich flexibel als Schlafzimmer, Arbeitszimmer, Kinderzimmer oder Gästezimmer nutzen und ermöglichen unterschiedliche Wohnkonzepte - sowohl für Singles als auch für Paare oder kleine Familien.

In der gesamten Wohnung ist Parkett verlegt. Das Badezimmer verfügt über eine Badewanne sowie ein Fenster und ist zeitlos gefliest. Die vorhandene Einbauküche ist im Kaufpreis enthalten und ermöglicht einen sofortigen Einzug ohne zusätzliche Investitionen. Die übrige Möblierung ist nicht Bestandteil des Angebots.

Die Wohnung befindet sich in einem gepflegten Zustand. Zur Wohnung gehört ein eigenes Kellerabteil. Ein Fahrradraum steht der Hausgemeinschaft ebenfalls zur Verfügung. Beheizt wird das Gebäude über Fernwärme; der Energieverbrauchskennwert liegt bei 93 kWh/(m²·a), Energieeffizienzklasse C.

Nicht nur die unmittelbare Nähe zum Lietzensee macht diese Immobilie besonders, sondern auch die Kombination aus oberster Etage, durchdachtem 3-Zimmer-Grundriss, Westloggia mit Weitblick und der gepflegten Wohnanlage. Hier verbinden sich Licht, Privatsphäre und ein angenehmes Wohnumfeld mit einer der gefragtesten Mikrolagen Charlottenburgs.

Die Käuferprovision beträgt: 3,57 % inkl. 19% MwSt..
Zimmer
3
Badezimmer
1
Schlafzimmer
2
Logia
1
Etage
4
Hausgeld
310,26 €
Zimmer
3
Badezimmer
1
Schlafzimmer
2
Logia
1
Etage
4
Hausgeld
310,26 €

Ausstattung

+4. Obergeschoss - letzte Etage mit viel Privatsphäre +Sofort bezugsfrei +Ca. 62,15 m² Wohnfläche +3 Zimmer (2 Schlafzimmer) +Westloggia mit ca. 3,36 m² +Weitblick über die umliegende Bebauung +Helle Wohnräume mit sehr guten Lichtverhältnissen +Gepflegter Gesamtzustand +Parkettboden in den Wohnräumen +Badezimmer mit Badewanne und Fenster +Einbauküche im Kaufpreis enthalten +Fernwärme +Energieeffizienzklasse C +Eigenes Kellerabteil +In ca. drei Minuten fußläufig zum Lietzensee
Ausstattung
gehoben
Einbauküche
Ja
Fliesenboden
Ja
Badewanne
Ja
Keller
Ja
Ausstattung
gehoben
Einbauküche
Ja
Fliesenboden
Ja
Badewanne
Ja
Keller
Ja

Lage und Umgebung

Die Immobilie befindet sich in Charlottenburg - eingebettet zwischen Kantstraße und Kurfürstendamm - im mit begehrtesten Wohngebiet Charlottenburgs rund um den Lietzensee. Der Lietzenseepark ist in etwa drei Minuten fußläufig erreichbar und bietet mit seiner Wasserfläche und dem alten Baumbestand eine außergewöhnliche Grün- und Erholungsqualität mitten in der Stadt.

Die Infrastruktur ist erstklassig. In wenigen Minuten erreichen Sie sowohl den Kurfürstendamm als auch die Kantstraße mit ihrem vielfältigen gastronomischen Angebot, renommierten Adressen und urbanem Flair. Die Wilmersdorfer Straße als zentrale Einkaufsstraße Charlottenburgs bietet zahlreiche Einzelhandelsgeschäfte, Supermärkte, Cafés und Restaurants. Auch die umliegenden Straßen wie die Windscheidstraße sind geprägt von kleinen Läden, Feinkostgeschäften und einer gewachsenen Kiezstruktur, die das Wohnumfeld besonders lebenswert macht.

Die Anbindung an den öffentlichen Nahverkehr ist hervorragend. Die U-Bahn-Station U Wilmersdorfer Straße (U7) sowie der S-Bahnhof Charlottenburg mit den Linien S3, S5, S7 und S9 sind schnell erreichbar und gewährleisten eine optimale Verbindung in sämtliche Stadtteile sowie in das Berliner Umland. Ergänzend ist die Stadtautobahn in wenigen Minuten erreichbar und sorgt für eine komfortable Anbindung an das gesamte Berliner Stadtgebiet.

Diese Lage vereint auf besondere Weise Wasser- und Grünnähe mit urbaner Infrastruktur, gewachsener Nachbarschaft und exzellenter Verkehrsanbindung. Das Wohngebiet rund um den Lietzensee zählt seit Jahren zu den stabilsten und gefragtesten Mikrolagen im Berliner Westen und steht für nachhaltige Wertigkeit und hohe Lebensqualität.

Energieausweis

Energieausweistyp
Verbrauchs­ausweis
Ausstellungsdatum
nach dem 1.5.2014
Gebäudeart
Wohngebäude
Baujahr
1955
Primärenergieträger
Fernwärme
Endenergie­verbrauch
93,00 kWh/(m²·a)
Energie­effizienz­klasse
C
0 25 50 75 100 125 150 175 200 225 250+ H G F E D C B A A+ H G F E D C B A A+ Endenergieverbrauch 93,00 kWh/(m²·a)

Provisionshinweis

Der Käufer bezahlt bei Abschluss des Kaufvertrages an die Kraft&Kraft Immobilien GmbH eine Provision in Höhe von 3,57% des Kaufpreises inkl. aktuell gesetzlicher Mehrwertsteuer. Die Provision ist verdient und fällig bei Abschluss des notariellen Kaufvertrags. Gesetzlich geregelt mit Verkäuferprovision in gleicher Höhe.
Hinweis
Bitte haben Sie Verständnis, dass nur vollständig ausgefüllte Anfrageformulare mit Namen und Anschrift bearbeitet werden.

Ihr Ansprechpartner

Jan-Benedict Kraft

Geschäftsführer

Hier können Sie das vollständige Exposé anfordern.

* Pflichtangaben
 SSL-verschlüsselt

Entdecken Sie weitere Immobilien.


450.000 €
Berlin,
12524
Wohnung
Objektart
3
Zimmer
81 m²
Wohnfläche

575.000 €
Berlin,
10715
Wohnung
Objektart
3
Zimmer
106 m²
Wohnfläche

785.000 €
Berlin,
14167
Haus
Objektart
5
Zimmer
116 m²
Wohnfläche

299.000 €
Berlin,
12167
Wohnung
Objektart
2
Zimmer
65 m²
Wohnfläche

159.000 €
Berlin,
10587
Wohnung
Objektart
1
Zimmer
27 m²
Wohnfläche

218.000 €
Berlin,
12159
Wohnung
Objektart
2
Zimmer
41 m²
Wohnfläche

372.800 €
Berlin,
14057
Wohnung
Objektart
3
Zimmer
62 m²
Wohnfläche

1.238.000 €
Berlin,
10585
Wohnung
Objektart
4
Zimmer
156 m²
Wohnfläche

339.000 €
Berlin,
10825
Wohnung
Objektart
3
Zimmer
71 m²
Wohnfläche

319.000 €
Berlin,
10629
Wohnung
Objektart
2
Zimmer
50 m²
Wohnfläche

279.000 €
Berlin,
14052
Wohnung
Objektart
3
Zimmer
71 m²
Wohnfläche

879.000 €
Berlin,
14199
Wohnung
Objektart
4
Zimmer
143 m²
Wohnfläche

415.000 €
Berlin,
10629
Wohnung
Objektart
3
Zimmer
64 m²
Wohnfläche

1.250.000 €
Berlin,
10629
Wohnung
Objektart
4
Zimmer
105 m²
Wohnfläche

559.000 €
Berlin,
10629
Wohnung
Objektart
3
Zimmer
77 m²
Wohnfläche

Sie sind auf der Suche nach einem besonderen Objekt?

Entdecken Sie außergewöhnliche Immobilien, die Ihren Ansprüchen entsprechen. Legen Sie jetzt Ihren Suchauftrag bei uns als Ihrem Makler an und lassen Sie uns Ihnen bei der Suche helfen.

Jetzt Wert Ihrer Immobilie berechnen.

Nutzen Sie diese Online-Immobilienbewertung, um den Wert Ihrer Immobilie schnell und einfach zu berechnen. Das Ergebnis erhalten Sie innerhalb weniger Minuten direkt per E-Mail.
 

Werde Sie Teil unseres Netzwerkes

Gern nehmen wir Sie in unser Netzwerk auf und bieten Ihnen Immobilien an, die genau zu Ihren Wünschen passen. Das spart Zeit – was aber noch wichtiger ist: Sie bekommen von uns auch Angebote, die wir aus Gründen der Diskretion nicht auf unserer Webseite präsentieren können.

Bitte füllen Sie das Formular möglichst vollständig aus, damit wir Ihnen passgenau Objekte vorschlagen können.

Treten Sie mit uns in Kontakt