Exklusive 3-Zimmer-Wohnung in Wilmersdorf – bezugsfrei, Balkon, Aufzug, 2 En-suite-Bäder, ruhig

Alles Wichtige auf einen Blick

Objektart
Wohnung
Standort
10717
Kaufpreis
599.000 €
Wohnfläche
78,07 m²
Zimmer
3
Zustand
gepflegt
Verfügbar ab
sofort
Baujahr
1900

Alles Wichtige auf einen Blick

Objektart
Wohnung
Standort
Berlin
Kaufpreis
599.000 €
Wohnfläche
78,07 m²
Zimmer
3
Zustand
gepflegt
Verfügbar ab
sofort
Baujahr
1900

Beschreibung

Diese hochwertig ausgestattete 3-Zimmer-Wohnung befindet sich im dritten Obergeschoss des ruhigen Gartenhauses eines gepflegten Mehrfamilienhauses in Berlin-Wilmersdorf. Sie überzeugt durch einen klar strukturierten Grundriss, eine moderne Ausstattung sowie stilvoll integrierte en-suite Bäder, die dem Wohnkonzept eine besondere Note von Komfort und Eleganz verleihen.
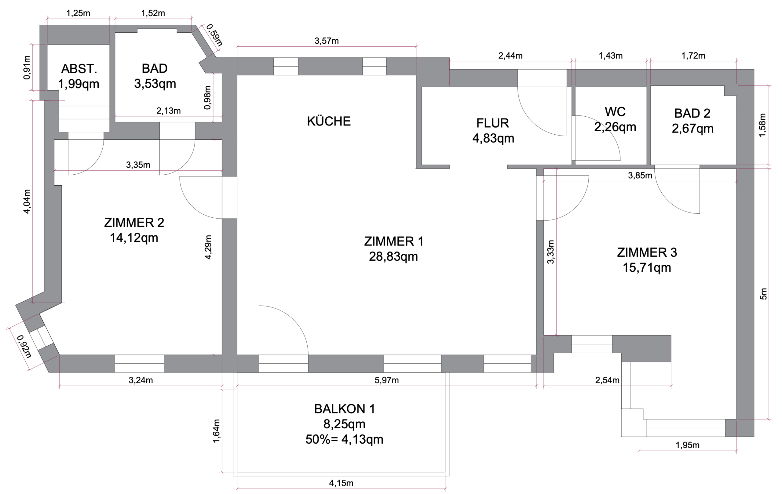
Auf ca. 78 m² Wohnfläche präsentiert sich ein durchdachtes Raumkonzept, das Funktionalität und Wohnqualität harmonisch miteinander verbindet. Bereits der einladende Eingangsbereich mit maßgefertigtem Einbauschrank vermittelt ein Gefühl von Großzügigkeit und Ordnung. Von hier aus öffnet sich der lichtdurchflutete Wohn-, Ess- und Küchenbereich als zentraler Mittelpunkt der Wohnung. Die offene Gestaltung in Verbindung mit hochwertigem Parkettboden und großzügigen Fensterflächen schafft eine helle und angenehme Wohnatmosphäre.
Der ruhig zum Innenhof ausgerichtete Balkon ist überdacht und bietet einen geschützten Rückzugsort im Freien. Der Küchenbereich ist mit einer modernen Einbauküche ausgestattet und fügt sich harmonisch in das offene Wohnkonzept ein.
Der Grundriss umfasst zwei gut proportionierte Schlafzimmer, die jeweils über ein eigenes Bad en suite mit Dusche verfügen. Eines der Bäder ist zusätzlich mit einem Fenster ausgestattet. Ein separater Abstellraum bietet praktische Staufläche. Ergänzt wird das Raumangebot durch ein Gäste-WC, das den Wohnkomfort zusätzlich erhöht.
Im Jahr 2023 wurde das Gemeinschaftseigentum des Gartenhauses umfassend saniert. Zeitgleich erfolgte durch die Eigentümer eine vollständige Sanierung der Wohnung. Sämtliche Ausstattungsmerkmale, Oberflächen und Außenflächen stammen aus diesem Zeitraum und entsprechen heutigen Wohn- und Qualitätsstandards.Vor kurzem wurden die Wände neu gestrichen sowie der Parkettboden fachgerecht überarbeitet und geölt. Die Wohnung präsentiert sich in einem sehr gepflegten Zustand mit gehobener Ausstattungsqualität. Ein Kellerraum sowie ein Personenaufzug im Haus runden dieses attraktive Angebot ab.
Das Gebäude wird über Fernwärme beheizt. Das monatliche Hausgeld beträgt 393 €.
Die Wohnung ist sofort verfügbar und eignet sich sowohl für Paare und Familien als auch für eine Wohngemeinschaft. Durch die praktische Raumaufteilung sind flexible Wohnkonzepte möglich, etwa für ein studierendes Kind und einen weiteren Mitbewohner in einer 2er-WG.

Die Käuferprovision beträgt: 3,57 % inkl. 19% MwSt..
Zimmer
3
Badezimmer
3
Schlafzimmer
2
Balkone
1
Etage
3
Anzahl Etagen
5
Hausgeld
393,00 €
Zimmer
3
Badezimmer
3
Schlafzimmer
2
Balkone
1
Etage
3
Anzahl Etagen
5
Hausgeld
393,00 €

Ausstattung

+Altbau Gartenhaus +3 Zimmer +ca. 78 m² Wohnfläche +3. Obergeschoss +Personenaufzug +2 Schlafzimmer +2 Bäder en suite +separates Gäste-WC +offener Wohn-, Ess- und Küchenbereich +Einbauküche +Balkon zum ruhigen Innenhof +hochwertiger Parkettboden in den Wohnräumen +moderne Fliesen in Bädern und Küche +maßgefertigter Einbauschrank im Eingangsbereich +Wohnung und Haus in 2013 saniert +Kellerabteil + WG-Geeignet +Fernwärmeheizung +gefragte Lage am Rand des Güntzelkiezes (Berlin-Wilmersdorf) +sehr gute Anbindung an den ÖPNV +Hausgeld: 393 € monatlich
Ausstattung
gehoben
Personenaufzug
Ja
Gäste-WC
Ja
Einbauküche
Ja
Fliesenboden
Ja
Keller
Ja
Fahrstuhl
Ja
Dusche
Ja
Ausstattung
gehoben
Personenaufzug
Ja
Gäste-WC
Ja
Einbauküche
Ja
Fliesenboden
Ja
Keller
Ja
Fahrstuhl
Ja
Dusche
Ja

Lage und Umgebung

Am Rand des charmanten Güntzelkiezes gelegen, bietet diese Wohnung das Beste aus zwei Welten: Urbane Anbindung an der Bundesallee und zugleich eine unerwartet ruhige Wohnatmosphäre im geschützten Garten- und Innenhofbereich, in dem vom Großstadttrubel kaum etwas wahrnehmbar ist. Der Güntzelkiez zählt zu den begehrtesten Wohnlagen in Berlin-Wilmersdorf und verbindet stilvolle Altbaustrukturen mit einer lebendigen, gewachsenen Nachbarschaft.
In unmittelbarer Umgebung finden sich zahlreiche Cafés, Restaurants, Bäckereien und kleine Boutiquen, die dem Viertel seinen besonderen Charakter verleihen. Einkaufsmöglichkeiten für den täglichen Bedarf, Wochenmärkte sowie Ärzte, Apotheken und Schulen sind fußläufig erreichbar. Der nahegelegene Volkspark Wilmersdorf und der Preußenpark bieten zusätzliche Erholungsflächen im Grünen und laden zu Spaziergängen, sportlichen Aktivitäten oder entspannten Stunden im Freien ein.​​​​
Die Verkehrsanbindung ist hervorragend. Die U-Bahnlinien U3, U7 und U9 sowie mehrere Buslinien ermöglichen eine schnelle Erreichbarkeit der Berliner Innenstadt und des Kurfürstendamms. Trotz dieser zentralen Lage bewahrt das Wohnumfeld seinen ruhigen und nachbarschaftlichen Charakter. Der Güntzelkiez steht für urbanes Wohnen mit Persönlichkeit, Lebensqualität und einem hohen Maß an Wohnkomfort – eine Lage, die sowohl bei Eigennutzern als auch bei Kapitalanlegern äußerst gefragt ist.

Energieausweis

Energieausweistyp
Verbrauchs­ausweis
Ausstellungsdatum
nach dem 1.5.2014
Gebäudeart
Wohngebäude
Baujahr
1900
Primärenergieträger
Fernwärme
Endenergie­verbrauch
83,90 kWh/(m²·a)
Warmwasser enthalten
ja
Energie­effizienz­klasse
C
0 25 50 75 100 125 150 175 200 225 250+ H G F E D C B A A+ H G F E D C B A A+ Endenergieverbrauch 83,90 kWh/(m²·a)

Provisionshinweis

Der Käufer bezahlt bei Abschluss des Kaufvertrages an die Kraft&Kraft Immobilien GmbH eine Provision in Höhe von 3,57% des Kaufpreises inkl. aktuell gesetzlicher Mehrwertsteuer. Die Provision ist verdient und fällig bei Abschluss des notariellen Kaufvertrags. Gesetzlich geregelt mit Verkäuferprovision in gleicher Höhe.
Hinweis
Bitte haben Sie Verständnis, dass nur vollständig ausgefüllte Anfrageformulare mit Namen und Anschrift bearbeitet werden.

Ihr Ansprechpartner

Jan-Benedict Kraft

Geschäftsführer

Hier können Sie das vollständige Exposé anfordern.

* Pflichtangaben
 SSL-verschlüsselt

Entdecken Sie weitere Immobilien.


450.000 €
Berlin,
12524
Wohnung
Objektart
3
Zimmer
81 m²
Wohnfläche

575.000 €
Berlin,
10715
Wohnung
Objektart
3
Zimmer
106 m²
Wohnfläche

785.000 €
Berlin,
14167
Haus
Objektart
5
Zimmer
116 m²
Wohnfläche

299.000 €
Berlin,
12167
Wohnung
Objektart
2
Zimmer
65 m²
Wohnfläche

159.000 €
Berlin,
10587
Wohnung
Objektart
1
Zimmer
27 m²
Wohnfläche

218.000 €
Berlin,
12159
Wohnung
Objektart
2
Zimmer
41 m²
Wohnfläche

372.800 €
Berlin,
14057
Wohnung
Objektart
3
Zimmer
62 m²
Wohnfläche

1.238.000 €
Berlin,
10585
Wohnung
Objektart
4
Zimmer
156 m²
Wohnfläche

339.000 €
Berlin,
10825
Wohnung
Objektart
3
Zimmer
71 m²
Wohnfläche

319.000 €
Berlin,
10629
Wohnung
Objektart
2
Zimmer
50 m²
Wohnfläche

279.000 €
Berlin,
14052
Wohnung
Objektart
3
Zimmer
71 m²
Wohnfläche

879.000 €
Berlin,
14199
Wohnung
Objektart
4
Zimmer
143 m²
Wohnfläche

415.000 €
Berlin,
10629
Wohnung
Objektart
3
Zimmer
64 m²
Wohnfläche

1.250.000 €
Berlin,
10629
Wohnung
Objektart
4
Zimmer
105 m²
Wohnfläche

559.000 €
Berlin,
10629
Wohnung
Objektart
3
Zimmer
77 m²
Wohnfläche

Sie sind auf der Suche nach einem besonderen Objekt?

Entdecken Sie außergewöhnliche Immobilien, die Ihren Ansprüchen entsprechen. Legen Sie jetzt Ihren Suchauftrag bei uns als Ihrem Makler an und lassen Sie uns Ihnen bei der Suche helfen.

Jetzt Wert Ihrer Immobilie berechnen.

Nutzen Sie diese Online-Immobilienbewertung, um den Wert Ihrer Immobilie schnell und einfach zu berechnen. Das Ergebnis erhalten Sie innerhalb weniger Minuten direkt per E-Mail.
 

Werde Sie Teil unseres Netzwerkes

Gern nehmen wir Sie in unser Netzwerk auf und bieten Ihnen Immobilien an, die genau zu Ihren Wünschen passen. Das spart Zeit – was aber noch wichtiger ist: Sie bekommen von uns auch Angebote, die wir aus Gründen der Diskretion nicht auf unserer Webseite präsentieren können.

Bitte füllen Sie das Formular möglichst vollständig aus, damit wir Ihnen passgenau Objekte vorschlagen können.

Treten Sie mit uns in Kontakt