Bezugsfreie 3-Zi.-Altbauwohnung, ca. 70 m², Südost-Balkon, Keller, nahe Rüdi im Rheingauviertel

Alles Wichtige auf einen Blick

Objektart
Wohnung
Standort
14197
Kaufpreis
395.000 €
Wohnfläche
70,00 m²
Zimmer
3
Zustand
renovierungsbedürftig
Verfügbar ab
sofort
Baujahr
1930

Alles Wichtige auf einen Blick

Objektart
Wohnung
Standort
Berlin
Kaufpreis
395.000 €
Wohnfläche
70,00 m²
Zimmer
3
Zustand
renovierungsbedürftig
Verfügbar ab
sofort
Baujahr
1930

Beschreibung

Die bezugsfreie 3-Zimmer-Wohnung befindet sich in einem gepflegten Gebäudeensemble aus den 1930er-Jahren, das durch seine klassische Architektur und solide Bausubstanz überzeugt. Der Zugang zu dem Gebäudeteil, in dem sich die Wohnung befindet, erfolgt vom Südwestkorso. Der weitläufige, begrünte Innenhof lädt zum Verweilen ein und vermittelt eine angenehme, ruhige Atmosphäre. Hier befinden sich ein Spielbereich mit Sandkiste und Klettergerüst sowie Fahrradabstellmöglichkeiten. Vom Hof aus besteht zudem ein Zugang zu einem gemeinschaftlichen Fahrradraum. Die gesamte Anlage wirkt sehr gepflegt und harmonisch.

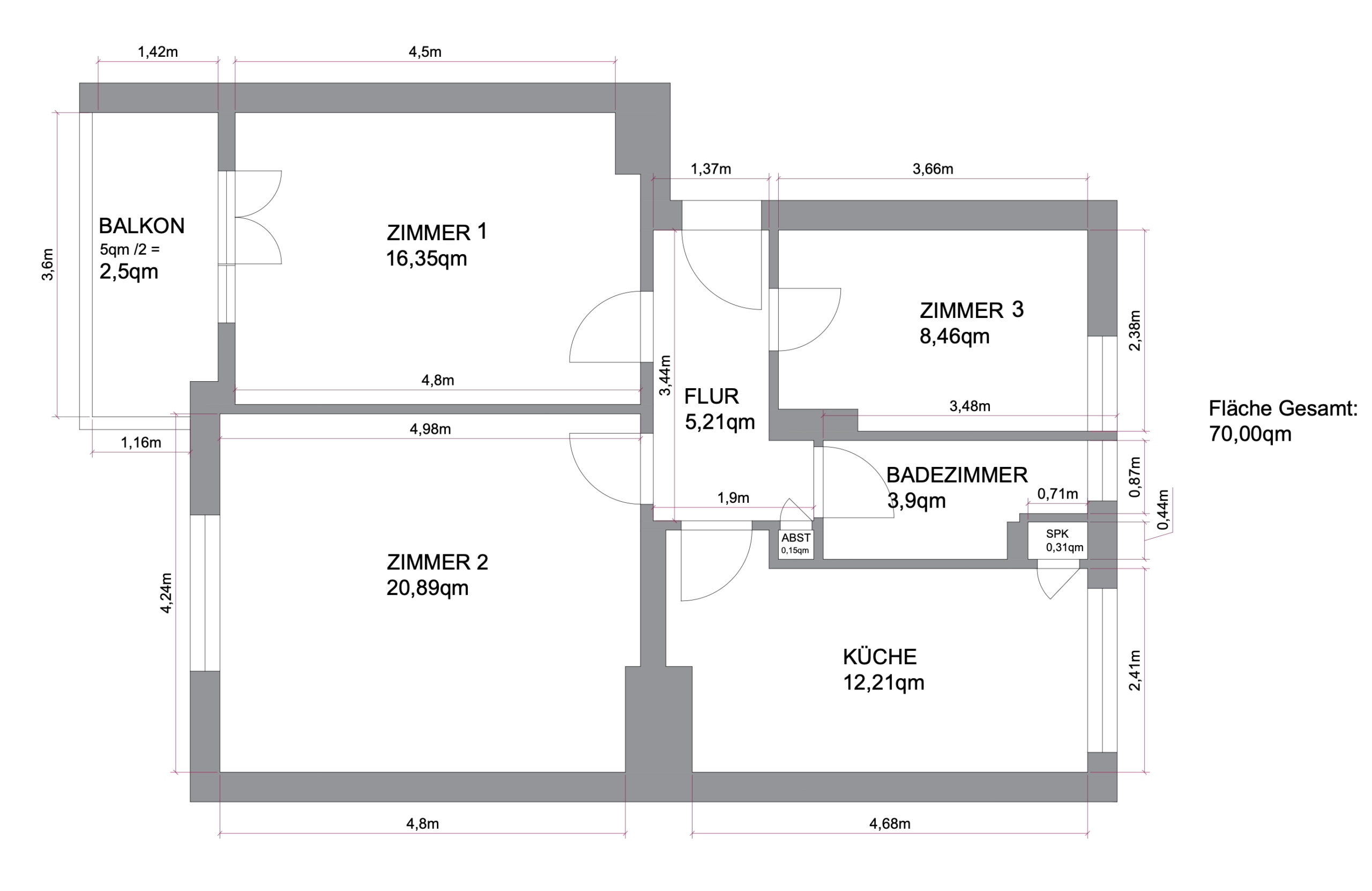
Die Wohnung liegt im 4. OG, ein Aufzug ist nicht vorhanden. Auf rund 70 Quadratmetern verteilen sich drei gut proportionierte Zimmer, eine Küche, ein Bad sowie ein Balkon mit Südost-Ausrichtung in den Innenhof. Besonders hervorzuheben sind die schönen Holzdielen, die derzeit noch unter einer Lackierung verborgen liegen, und der charaktervolle Terrazzo-Boden, der sich unter den Fliesen in der Küche befindet.

Im Flur befindet sich ein kleiner Abstellraum, in dem der Strom- und der Gaszähler untergebracht sind. In der Küche steht ein Gasanschluss ausschließlich zum Kochen zur Verfügung, außerdem ist von hier aus eine kleine Speisekammer zugänglich, die zusätzlichen Stauraum bietet.

Die Fenster wurden vor wenigen Jahren sorgfältig überarbeitet und teilweise durch neue Holzfenster ersetzt. Heizung und Warmwasser werden zentral über Fernwärme bereitgestellt. Die Wohnung ist sofort verfügbar. Ein Kellerraum in angenehmer Größe bietet zusätzlichen Stauraum.

Die Käuferprovision beträgt: 3,57 % inkl. 19% MwSt..
Zimmer
3
Badezimmer
1
Schlafzimmer
2
Balkone
1
Etage
4
Hausgeld
256,04 €
Zimmer
3
Badezimmer
1
Schlafzimmer
2
Balkone
1
Etage
4
Hausgeld
256,04 €

Ausstattung

+Sofort Bezugsfrei +3-Zimmer (2-Schlafzimmer) +4. OG +Ca. 70 m2 +Südost-Balkon +Fernwärme +Tageslichtbad +Küche mit Speisekammer +Gepflegtes Gemeinschaftseigentum +Großer Innenhof mit Spielbereich +Kellerraum
Ausstattung
Standard
Dielenboden
Ja
Badewanne
Ja
Keller
Ja
Ausstattung
Standard
Dielenboden
Ja
Badewanne
Ja
Keller
Ja

Lage und Umgebung

Die Wohnung befindet sich im Rheingauviertel, einem beliebten und begehrten Quartier im Südosten des Stadtbezirks Charlottenburg-Wilmersdorf, zwischen den Stadtteilen Schmargendorf und Friedenau. Das Rheingauviertel um den Rüdesheimer Platz ist bekannt für seine gewachsene Altbaustruktur, die ruhigen Straßen und das charmante, fast kleinstädtische Flair.
Gepflegte Wohnhäuser aus der Jahrhundertwende sowie den 1920er- und 1930er-Jahren prägen das Bild des Viertels mit seinen von Bäumen gesäumten Straßen und grünen Innenhöfen.

Der Südwestkorso zählt zu den schönsten Wohnlagen im Südwesten Berlins und verbindet Friedenau mit Wilmersdorf. In der näheren Umgebung finden sich zahlreiche Cafés, kleine Restaurants, Bäckereien und Feinkostgeschäfte sowie Supermärkte, Apotheken, Ärzte und weitere Geschäfte des täglichen Bedarfs.

Die U-Bahnstation Rüdesheimer Platz (U3) ist fußläufig sehr schnell erreichbar, die S-Bahn-Stationen Feuerbachstraße (S1), Heidelberger Platz und Bundesplatz (S41 u. S42) liegen etwas weiter entfernt. Mehrere Buslinien ergänzen die gute Verkehrsanbindung und verbinden das Quartier mit Steglitz, Dahlem, Wilmersdorf und Schöneberg.

Auch das Freizeit- und Erholungsangebot ist vielfältig: Der Rüdesheimer Platz, der Volkspark Wilmersdorf und der Botanische Garten, aber auch der relativ nahe gelegene Insulaner mit Sternwarte und Sommerbad bieten vielfältige Möglichkeiten zur Entspannung im Grünen.

Die Lage am Südwestkorso vereint die Ruhe eines gewachsenen Berliner Wohnviertels mit der Nähe zur pulsierenden City – ein Ort mit Stil, Geschichte und Lebensqualität.

Energieausweis

Energieausweistyp
Verbrauchs­ausweis
Ausstellungsdatum
nach dem 1.5.2014
Gebäudeart
Wohngebäude
Baujahr
1930
Primärenergieträger
Fernwärme
Endenergie­verbrauch
113,00 kWh/(m²·a)
Warmwasser enthalten
ja
Energie­effizienz­klasse
D
0 25 50 75 100 125 150 175 200 225 250+ H G F E D C B A A+ H G F E D C B A A+ Endenergieverbrauch 113,00 kWh/(m²·a)

Provisionshinweis

Der Käufer bezahlt bei Abschluss des Kaufvertrages an die Kraft&Kraft Immobilien GmbH eine Provision in Höhe von 3,57 % des Kaufpreises inkl. aktuell gesetzlicher Mehrwertsteuer. Die Provision ist verdient und fällig bei Abschluss des notariellen Kaufvertrags. Gesetzlich geregelt mit Verkäuferprovision in gleicher höhe.
Hinweis
Bitte haben Sie Verständnis, dass nur vollständig ausgefüllte Anfrageformulare mit Namen und Anschrift bearbeitet werden.

Ihr Ansprechpartner

Jan-Benedict Kraft

Geschäftsführer

Hier können Sie das vollständige Exposé anfordern.

* Pflichtangaben
 SSL-verschlüsselt

Entdecken Sie weitere Immobilien.


450.000 €
Berlin,
12524
Wohnung
Objektart
3
Zimmer
81 m²
Wohnfläche

575.000 €
Berlin,
10715
Wohnung
Objektart
3
Zimmer
106 m²
Wohnfläche

785.000 €
Berlin,
14167
Haus
Objektart
5
Zimmer
116 m²
Wohnfläche

299.000 €
Berlin,
12167
Wohnung
Objektart
2
Zimmer
65 m²
Wohnfläche

159.000 €
Berlin,
10587
Wohnung
Objektart
1
Zimmer
27 m²
Wohnfläche

218.000 €
Berlin,
12159
Wohnung
Objektart
2
Zimmer
41 m²
Wohnfläche

372.800 €
Berlin,
14057
Wohnung
Objektart
3
Zimmer
62 m²
Wohnfläche

1.238.000 €
Berlin,
10585
Wohnung
Objektart
4
Zimmer
156 m²
Wohnfläche

339.000 €
Berlin,
10825
Wohnung
Objektart
3
Zimmer
71 m²
Wohnfläche

319.000 €
Berlin,
10629
Wohnung
Objektart
2
Zimmer
50 m²
Wohnfläche

279.000 €
Berlin,
14052
Wohnung
Objektart
3
Zimmer
71 m²
Wohnfläche

879.000 €
Berlin,
14199
Wohnung
Objektart
4
Zimmer
143 m²
Wohnfläche

415.000 €
Berlin,
10629
Wohnung
Objektart
3
Zimmer
64 m²
Wohnfläche

1.250.000 €
Berlin,
10629
Wohnung
Objektart
4
Zimmer
105 m²
Wohnfläche

559.000 €
Berlin,
10629
Wohnung
Objektart
3
Zimmer
77 m²
Wohnfläche

Sie sind auf der Suche nach einem besonderen Objekt?

Entdecken Sie außergewöhnliche Immobilien, die Ihren Ansprüchen entsprechen. Legen Sie jetzt Ihren Suchauftrag bei uns als Ihrem Makler an und lassen Sie uns Ihnen bei der Suche helfen.

Jetzt Wert Ihrer Immobilie berechnen.

Nutzen Sie diese Online-Immobilienbewertung, um den Wert Ihrer Immobilie schnell und einfach zu berechnen. Das Ergebnis erhalten Sie innerhalb weniger Minuten direkt per E-Mail.
 

Werde Sie Teil unseres Netzwerkes

Gern nehmen wir Sie in unser Netzwerk auf und bieten Ihnen Immobilien an, die genau zu Ihren Wünschen passen. Das spart Zeit – was aber noch wichtiger ist: Sie bekommen von uns auch Angebote, die wir aus Gründen der Diskretion nicht auf unserer Webseite präsentieren können.

Bitte füllen Sie das Formular möglichst vollständig aus, damit wir Ihnen passgenau Objekte vorschlagen können.

Treten Sie mit uns in Kontakt